Kadett B Forum
Registrierung Kalender Mitgliederliste Teammitglieder Statistik Suche Häufig gestellte Fragen Galerie Zur Startseite

Kadett B Forum » Alles zum Kadett B » Elektrik » Zusatzscheinwerfer anschließen ... ? » Hallo Gast [Anmelden|Registrieren]
Letzter Beitrag | Erster ungelesener Beitrag Druckvorschau | An Freund senden | Thema zu Favoriten hinzufügen
Neues Thema erstellen Antwort erstellen
Zum Ende der Seite springen Zusatzscheinwerfer anschließen ... ?
Autor
Beitrag « Vorheriges Thema | Nächstes Thema »
cruiser


images/avatars/avatar-2208.jpg

Dabei seit: 15.04.04
Herkunft: 38165 Lehre aktuell in Chengdu / China

Zusatzscheinwerfer anschließen ... ? Auf diesen Beitrag antworten Zitatantwort auf diesen Beitrag erstellen Diesen Beitrag editieren/löschen Diesen Beitrag einem Moderator melden       Zum Anfang der Seite springen

moin,

Elektrik ist mir ein Grauß ...

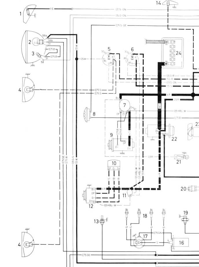
Also: Ist das Ding auf dem Bild, das Relais für die Nebelschweinwerfer ?
Im Schlatplan wäre das die Nummer 5. Kann ich das für Zusatzscheinwerfer benutzen oder nich kopfkratz
Nebelscheinwerfer habe ich nicht verbaut.

Wenn das nicht der richtige Weg ist, was muss ich tun ?? Sozusagen ne Fernscheinwerfereinbauanleitung für elektrisch blinde Maschinenbauer ...

cruiser

cruiser hat diese Bilder (verkleinerte Versionen) angehängt:

 
   Dateigröße:    Dateiname: Nebelscheinwerfer.jpg

 

   Dateigröße:    Dateiname: Schaltplan.jpg

19.05.08 10.47 cruiser ist offline E-Mail an cruiser senden Beiträge von cruiser suchen Nehmen Sie cruiser in Ihre Freundesliste auf
smeagol
unregistriert
Auf diesen Beitrag antworten Zitatantwort auf diesen Beitrag erstellen Diesen Beitrag editieren/löschen Diesen Beitrag einem Moderator melden       Zum Anfang der Seite springen

Das Relais müsste für Fernscheinwerfer sein!
Kannst probieren ob es durchschaltet wenn du am Blink hebel ziehst, sprich Fernlicht betätigst!
19.05.08 10.56
cruiser


images/avatars/avatar-2208.jpg

Dabei seit: 15.04.04
Herkunft: 38165 Lehre aktuell in Chengdu / China

Themenstarter Thema begonnen von cruiser
Auf diesen Beitrag antworten Zitatantwort auf diesen Beitrag erstellen Diesen Beitrag editieren/löschen Diesen Beitrag einem Moderator melden       Zum Anfang der Seite springen

kopfkratz

... also für das "normale Fernlicht" ? Warum findet man das dann nicht im Schaltplan ? Oder meinst Du das so, dass man über dieses Relais dann noch zusätzliche Fernscheinwerfer über den Blinkerhebel mit einschalten könnte ?

Die Zusatzscheinwerfer sollen ja eigentlich über den Nebellampenschalter betätigt werden. Dann kann man die unabhängig vom Fernlicht der Hauptscheinwerfer einschalten.
19.05.08 11.04 cruiser ist offline E-Mail an cruiser senden Beiträge von cruiser suchen Nehmen Sie cruiser in Ihre Freundesliste auf
smeagol
unregistriert
Auf diesen Beitrag antworten Zitatantwort auf diesen Beitrag erstellen Diesen Beitrag editieren/löschen Diesen Beitrag einem Moderator melden       Zum Anfang der Seite springen

Für mich ist elektifitsch auch immer Fummelkram, teste halt ob das Relais anzieht, zu dem anderen kann ich dir leider nicht helfen! frown

hut
19.05.08 11.09
MsSuperman
unregistriert
Auf diesen Beitrag antworten Zitatantwort auf diesen Beitrag erstellen Diesen Beitrag editieren/löschen Diesen Beitrag einem Moderator melden       Zum Anfang der Seite springen

Ich hab an dieser Stelle nur den Sockel für das Relais. Habe keine Zusatzscheinwerfer montiert. Heißt: Ohne Relais, ganz normale Lichtfunktionen.
Also müsste das Relais ja schon für Zusatz- Nebel- oder Fernscheinwerfer sein?!
Die Frage ist ja dann, ob dieser Relaissockel immer im Kabelbaum ist und von dort auch Kabel nach vorne gehen?

MsSuperman hat dieses Bild (verkleinerte Version) angehängt:

 
   Dateigröße:    Dateiname: Relaisstecker.jpg

19.05.08 11.28
KrystynaKadett


images/avatars/avatar-1850.jpg

Dabei seit: 27.02.07
Herkunft: Stade

Auf diesen Beitrag antworten Zitatantwort auf diesen Beitrag erstellen Diesen Beitrag editieren/löschen Diesen Beitrag einem Moderator melden       Zum Anfang der Seite springen

Moin

bei meinem L ist das Relais auch verbaut und ein Schalter für
Nebelscheinwerfer ist auch vorhanden. Kabel liegen auch vor Ort
hinter dem Kühlergrill für evtl. Nebelscheinwerfer.
Denke mal das war beim L Standard oder als Option bestellbar.
...die Kabel liegen bei meinem im originalen Kabelbaum, ist also
nichts nachgerüstet worden.

Gruß Peter

Dieser Beitrag wurde 1 mal editiert, zum letzten Mal von KrystynaKadett: 19.05.08 11.46.

19.05.08 11.35 KrystynaKadett ist offline E-Mail an KrystynaKadett senden Beiträge von KrystynaKadett suchen Nehmen Sie KrystynaKadett in Ihre Freundesliste auf
cruiser


images/avatars/avatar-2208.jpg

Dabei seit: 15.04.04
Herkunft: 38165 Lehre aktuell in Chengdu / China

Themenstarter Thema begonnen von cruiser
Auf diesen Beitrag antworten Zitatantwort auf diesen Beitrag erstellen Diesen Beitrag editieren/löschen Diesen Beitrag einem Moderator melden       Zum Anfang der Seite springen

aja ...

Bei mir waren beim Kauf Zusatzscheinwerfer montiert. Allerdings welche aus dem zubehör und die waren mit nem wilden Kabelsalat an den Schalter für das Nebellicht angeschlossen ... ohne irgendein Relais dazwischen. Hat auch funktioniert bis ich den Kabelsalat im Motorraum und die Zusatzscheinwerfer entsorgt habe.

Also wer weiß es genau wofür das Relais ist ??

cruiser
19.05.08 11.39 cruiser ist offline E-Mail an cruiser senden Beiträge von cruiser suchen Nehmen Sie cruiser in Ihre Freundesliste auf
cruiser


images/avatars/avatar-2208.jpg

Dabei seit: 15.04.04
Herkunft: 38165 Lehre aktuell in Chengdu / China

Themenstarter Thema begonnen von cruiser
Auf diesen Beitrag antworten Zitatantwort auf diesen Beitrag erstellen Diesen Beitrag editieren/löschen Diesen Beitrag einem Moderator melden       Zum Anfang der Seite springen

@ Peter ... ok, dann werd ich mal schauen, ob ich bei mir hinterm Grill etwas entsprechendes finde. Aufgefallen ist mir da bisher noch nix. Meine Limo ist ja auch ein "L"

smile
19.05.08 11.41 cruiser ist offline E-Mail an cruiser senden Beiträge von cruiser suchen Nehmen Sie cruiser in Ihre Freundesliste auf
Kadett B LF 69


images/avatars/avatar-1705.jpg

Dabei seit: 19.02.05
Herkunft: 33428 Harsewinkel

Auf diesen Beitrag antworten Zitatantwort auf diesen Beitrag erstellen Diesen Beitrag editieren/löschen Diesen Beitrag einem Moderator melden       Zum Anfang der Seite springen

Hallo,
viielleicht hilft ja dieser Schaltplan.
Kann ich auf Wunsch auch noch größer per Email verschicken.
Gruß Sven

Kadett B LF 69 hat diese Bilder (verkleinerte Versionen) angehängt:

 
   Dateigröße:    Dateiname: K1024_Schaltplan.jpg

 

   Dateigröße:    Dateiname: K1024_Schaltplan Legende.jpg



__________________
Kadett B LS LF 1,2S (ursprünglich 1,1S) 2 Türer Automatik, Bj: 1969, DZM, Unterboden in Wagenfarbe, H-Kennzeichen, im Familienbesitz seit 1969

Dieser Beitrag wurde 1 mal editiert, zum letzten Mal von Kadett B LF 69: 19.05.08 21.22.

19.05.08 21.21 Kadett B LF 69 ist offline E-Mail an Kadett B LF 69 senden Beiträge von Kadett B LF 69 suchen Nehmen Sie Kadett B LF 69 in Ihre Freundesliste auf
cruiser


images/avatars/avatar-2208.jpg

Dabei seit: 15.04.04
Herkunft: 38165 Lehre aktuell in Chengdu / China

Themenstarter Thema begonnen von cruiser
Auf diesen Beitrag antworten Zitatantwort auf diesen Beitrag erstellen Diesen Beitrag editieren/löschen Diesen Beitrag einem Moderator melden       Zum Anfang der Seite springen

Also bei dem Relais in meinem Motorraum handelt es sich tatsächlich um die Variante für Fernscheinwerfer. Ich habe im Kabelbaum hinter dem Kühlergrill auch die abgekniffenen Enden der Leitungen für die Zusatzscheinwerfer gefunden ... da werde ich mal rangehen. Man lernt nicht aus.

Bin allerdings schon erstaunt das sich scheinbar niemand so richtig damit auskennt ... die Hinweise waren zweifelsfrei hilfreich aber so richtig konkret wusste es keiner. Wo sind denn unsere Kadett B Experten ?

komisch, komisch ...

cruiser
19.05.08 22.43 cruiser ist offline E-Mail an cruiser senden Beiträge von cruiser suchen Nehmen Sie cruiser in Ihre Freundesliste auf
trashman
man at work

images/avatars/avatar-2263.jpg

Dabei seit: 03.12.07
Herkunft: Neumünster

Auf diesen Beitrag antworten Zitatantwort auf diesen Beitrag erstellen Diesen Beitrag editieren/löschen Diesen Beitrag einem Moderator melden       Zum Anfang der Seite springen

Moin, moin !!
Bei meinem Oly A war dieses Relais auch schon eingebaut, und
die Kabel hinterm Kühlergril angebunden, brauchte nur noch
Scheinwerfer montieren und einschalten...
In diesem Falle aber für Nebelscheinwerfer !!

Gruß Thomas

__________________
your cash ain't nothin' but trash^^
19.05.08 22.52 trashman ist offline E-Mail an trashman senden Beiträge von trashman suchen Nehmen Sie trashman in Ihre Freundesliste auf
Kurt


Dabei seit: 01.03.07
Herkunft: Österreich

Auf diesen Beitrag antworten Zitatantwort auf diesen Beitrag erstellen Diesen Beitrag editieren/löschen Diesen Beitrag einem Moderator melden       Zum Anfang der Seite springen

Die Zusatzscheinwerfer (Auch Weitstrahler genannt) schalten sich mit ein wenn du das Fernlicht einschaltest.

Die Nebelscheinwerfer (auch Breitstrahler genannt) können zusätzlich ab Einschaltung des Standlichtes eingeschaltet werden.

Demnach ist die Relaisschaltung des Zusatzscheinwerfers wie folgt:

85 Masse
86 an 56a (Kabel für Fernscheinwerfer)
30 Dauerplus über Sicherung
87 Zusatzscheinwerfer

Schaltung am Relaise für Nebelscheinwerfer erfolgt so:

85 Über Nebelscheinwerferschalter auf Masse
86 an 58 (Kabel für Standlicht)
30 an Klemme 15 (Plus über Zündung geschaltet)
87 Nebelscheinwerfer Top

__________________
...nichts ist tot bevor es nicht vergraben ist!
20.05.08 07.17 Kurt ist offline E-Mail an Kurt senden Homepage von Kurt Beiträge von Kurt suchen Nehmen Sie Kurt in Ihre Freundesliste auf
Baumstruktur | Brettstruktur
Gehe zu:
Neues Thema erstellen Antwort erstellen
Kadett B Forum » Alles zum Kadett B » Elektrik » Zusatzscheinwerfer anschließen ... ?

Impressum